As you may or may not be aware, when we built the Blue House, we decided to leave the basement unfinished for a myriad of reasons. And five years later we were still slowly saving and discussing ideas from time to time. In January 2020, the basement wasn’t in any real danger of becoming anything other than a giant concrete room under our house for the foreseeable future.
Then the pandemic happened. Chad was working from home. My sister dropped in for several weeks (with the best niece in the world), to wait out part of the quarantine in Utah instead of California. Suddenly, our house was too small. And we had all of our 2020 travel budget all dressed up and nowhere to go.
Since I was also dealing with pandemic related insomnia, I was awake at two in the morning quite frequently and using a newly acquired computer program to come up with all types of home renovation ideas (see two previous posts about bathrooms). Chad got very excited very quickly and soon we had meetings with contractors to see if we could get the basement completed before the second wave. Ha! Jokes on us, there was no second wave! The first one never stopped.

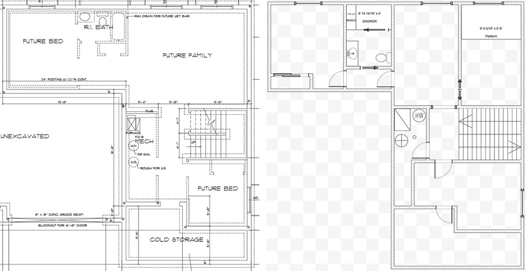
The first thing we needed to do was have the bathroom rough-ins redone. For reference the (incorrect) bathroom rough-ins are sticking up out of the concrete behind the shop-vac in the above photo. The bathroom that was set in concrete was weird, unnecessarily cramped, and tiny. Since this will mainly be used by my favorite sister and my favorite future brother-in-law who is part sasquatch, that bathroom needed to be at minimum, normal sized.

Two years ago we purchased a treadmill (Chad was training for a marathon at the time) and despite all of our major races being cancelled this year, we still both use it daily. Since we don’t need another bedroom and we don’t plan on returning to the regular gym ever again, an exercise room would be a nice use of the space. This room is also where the giant doll house will live – in an area that can be a closet if it ever needed to become a bedroom – mainly because it will take an act of god to get it out of the basement (it is currently in the cold storage).

We always knew the basement would have a bar area. We even asked the builders to rough-in a drain for the bar sink, which they did. Chad has been the most excited about the bar area since we built the house. The bar area will be detailed in another post some day.
But we had a problem: the room was too large to “just” be a bar but it wasn’t large enough to also be room with a giant TV and giant couches. Because of course we need an area that would be used to watch sports ball when it is safe to do so again. Where there would often be people shouting at the television cranked at an exceptionally loud volume while other people were trying to enjoy some beverages at the bar. It took several days of trying to come up with a good solution but I finally channeled my inner adorable (redundant) latina.
I noticed that the “Future Family” or multimedia room could very easily be split into two. And therefore allow for a cinema room with a large TV and chairs AND a bar area. Everyone could be happy. Unfortunately my ingenuity did not culminate with me being carried around on the shoulders of my very proud family members. But I did pull a neck muscle patting myself on the back.

As of this writing, we hired a contractor, we’ve purchased all the necessary pieces that are living in the garage and gathering dust. Basically all the wheels are in motion and Bella is absolutely sure that the world is ending. We hope to have all of this completed in time for Halloween, for no reason other than to have a goal date where people are no longer showing up at random times and banging on the walls and driving Bella insane.
Perhaps this time next year, we can have people over to enjoy a little shouting at the TV and drinks from the bar. Here’s hoping!